安詩曼電器
手機:133-6050-3273
微信:133-6050-3273
地址:廣東深圳坪山區青松西路8號鴻合科技園

調溫除濕機是一種高效的節能除濕方式,利用蒸發器降溫除濕空氣,回收系統的冷凝熱,補充空氣中的冷卻除濕失去的熱量,已經廣泛用于防御工程、人防工程、煙草和石油化工行業、地鐵站、宇宙領域的凈化工程、實驗室、通信器材室、檔案室、食品室、制
了解詳情
調溫除濕機是提供一種可以在不同室內、外溫度下對室內進行供熱、制冷和除濕以滿足室內溫濕度要求的調溫調濕方法及其設備,可以提高除濕調溫系統的性能,擴大除濕調溫系統的適用范圍。調溫除濕機用蒸發器來給空氣降溫除濕,并回收系統的冷凝熱
了解詳情
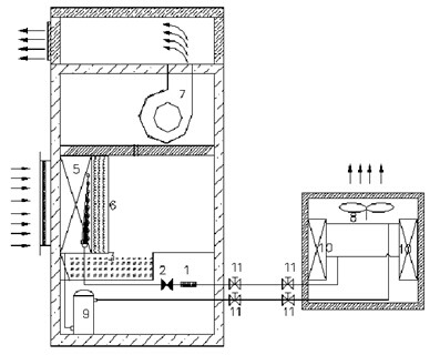
調溫調濕機組分風冷管道除濕機與水冷管道調溫除濕機,由壓縮機、四通閥、室外換熱器、室內第二換熱器、室內第一換熱器、膨脹閥等過制冷劑管路連接成一個制冷循環,其中室外換熱器與室內第二換熱器兩個支路并聯,并在室內第二換熱器的支路上安裝用來控制支路通斷的電磁閥。調溫除濕機用蒸
了解詳情
調溫除濕機有兩種,風冷調溫除濕機是其中之一。除濕機具有除濕范圍廣的特點,可以有效的進行大面積的濕潤空氣,效果非常明顯。為了讓大家更清楚的了解風冷調溫除濕機的功能,杭州調溫除濕機公司為大家做如下介紹。1、風冷調溫除濕機是一種高效節能的除濕方式。它利用蒸發器對空氣進行冷卻和除濕,并回收系統的冷凝熱,以彌...
了解詳情
調溫除濕機又名恒溫除濕機用蒸發器與冷凝器來對空氣進行處理,從而達到調溫除濕的目的。其工作過程中回收系統的冷凝熱,來彌補空氣中因為冷卻除濕時散失的熱量,是一種高.效節能的除濕方式,已經廣.泛應用于國防工程、人防工程、煙草及石化行業、地鐵車站、航天領域凈化工程、實驗室、電訊器材室、檔案室、食品房、制藥或...
了解詳情
調溫除濕機是在普通除濕機中增加溫度控制單元,達到既除濕又降溫的目的,適用于工業品及農副產品生產車間,往往根據所生產產品對空氣濕度敏感性,需要對生產車間室內空氣予以抽濕,達到其工藝性要求。調溫除濕機根據客戶的要求和資源,其升溫方式可以有熱泵升溫、蒸氣升溫、電加熱升溫或集中方式組合升溫。溫度和濕度是室內...
了解詳情
除濕機經過多年的發展,已經被人們所熟知,每一種所除濕機所應用的場所都不一樣。那么,調溫除濕機主要應用在什么地方呢?調溫除濕機用蒸發器來給空氣降溫除濕,并回收系統的冷凝熱,彌補空氣中因為冷卻除濕時散失的熱量,是一種高效節能的除濕方式,已經廣泛應用于國防工程
了解詳情
除濕機經過多年的發展,已經被人們所熟知,每一種所除濕機所應用的場所都不一樣。那么,調溫除濕機主要應用在什么地方呢?調溫除濕機用蒸發器來給空氣降溫除濕,并回收系統的冷凝熱,彌補空氣中因為冷卻除濕時散失的熱量,是一種高效節能的除濕方式,已經廣泛應用于國防工程、人防工程、煙草及石化行業、地鐵車站、航天領域...
了解詳情
調溫除濕機是提供一種可以在不同室內、外溫度下對室內進行供熱、制冷和除濕以滿足室內溫濕度要求的調溫調濕方法及其設備,可以提高除濕調溫系統的性能,擴大除濕調溫系統的適用范圍。調溫除濕機用蒸發器來給空氣降溫除濕,并回收系統的冷凝熱,彌補空氣中因為冷卻除濕時散失的熱量,是一種高效節能的除濕方式。已經廣泛應用...
了解詳情
(5)自動除霜當系統運行于模式時,室內第一換熱器為蒸發器,當蒸發器表面溫度低于0oC,進入蒸發器的空氣相對濕度大時,空氣中的水分可能在蒸發器外表面結霜,當霜達到一定厚度后,使得空氣側壓力損失上升,空氣流量降低
了解詳情
調溫除濕機用蒸發器來給空氣降溫除濕,并回收系統的冷凝熱,彌補空氣中因為冷卻除濕時散失的熱量,是一種高效節能的除濕方式,已經廣泛應用于國防工程、人防工程、煙草及石化行業、地鐵車站、航天領域凈化工程、實驗室、電訊器材室、檔案室、食品房、制藥或膠片車間、特種玻璃制造、糧食、木材
了解詳情
調溫除濕機用蒸發器來給空氣降溫除濕,并回收系統的冷凝熱,彌補空氣中因為冷卻除濕時散失的熱量,是一種高效節能的除濕方式,已經廣泛應用于國防工程、人防工程、煙草及石化行業、地鐵車站、航天領域凈化工程、實驗室、電訊器材室、檔案室、食品房、制藥或膠片車間、特種玻璃制造、糧食、木材等的除濕干燥和高
了解詳情
調溫除濕機用蒸發器來給空氣降溫除濕,并回收系統的冷凝熱,彌補空氣中因為冷卻除濕時散失的熱量,是一種高效節能的除濕方式,已經廣泛應用于國防工程、人防工程、煙草及石化行業、地鐵車站、航天領域凈化工程、實驗室、電訊器材室、檔案室、食品房、制藥或膠片車間、特種玻璃制造、糧食、木材等的除濕干燥和高濕空間的除濕...
了解詳情
調溫除濕機用蒸發器來給空氣降溫除濕,并回收系統的冷凝熱,彌補空氣中因為冷卻除濕時散失的熱量,是一種高效節能的除濕方式,已經廣泛應用于國防工程、人防工程、煙草及石化行業、地鐵車站、航天領域凈化工程、實驗室、電訊器材室、檔案室、食品房、制藥或膠片車間、特種玻璃制造、糧食、木材等的除濕干燥和高濕空間的除濕
了解詳情
調溫除濕機又名恒溫除濕機用蒸發器與冷凝器來對空氣進行處理,從而達到調溫除濕的目的。其工作過程中回收系統的冷凝熱,來彌補空氣中因為冷卻除濕時散失的熱量,是一種高效節能的除濕方式,已經廣泛應用于國防工程、人防工程
了解詳情
調溫除濕器利用蒸發器對空氣進行冷卻、除濕,回收系統的冷凝熱,彌補冷卻除濕在空氣中損失的熱量,是一種節能的除濕方法,廣泛應用于糧食、木材等除濕干燥、高濕空間除濕及溫度控制中。調溫除濕機用蒸發器來給空氣降溫除濕,并收回體系的冷凝熱,彌補空氣中由于冷卻除濕時流失的熱量,是一種節能的除濕方法,現已廣泛應用于...
了解詳情
調溫調濕機溫濕度自動控制技術介紹:調溫調濕機,又叫恒溫恒濕機,或者是恒溫恒濕空調,恒溫恒濕機組,恒溫恒濕系統,名稱有很多,但是功能只有一個,那就是對生產環境的溫度和濕度進行控制,確保溫濕度不會變化,或者是變化不大。這種設備可以制冷也可以制熱,
了解詳情
調溫型除濕機適合高溫環境中使用,在一些溫度變化比較大,溫度比較高的場合下,使用調溫型除濕機的話,對于降低環境內溫度和濕度會有比較顯著和良好的效果,給我們的生產和工作帶來的極大的方便。調溫型除濕機的濕裝置由除濕蛋和承座組成。所謂除濕蛋,就是一種多孔的,透氣較好的的陶瓷外殼,除濕蛋的里面是一個容器,里面...
了解詳情
工業的調溫功能工業上用的除濕機分為調溫式和不調溫式的兩種。現在我們就說說這種調溫式除濕機的功能。工業上用的調溫除濕機有三種類型,一種是通過降溫除濕的,一種是通過升溫除濕的,還有一種是通過調濕除濕的除濕機。先說升溫式的除濕機,這種除濕機里
了解詳情
調溫型除濕機具有自動調控溫濕度的功能,還可以制冷除濕,特別適合用于變化比較大的高溫高濕的環境,能有效降低室內濕度,還可以自動檢測濕度,帶來了很大的便利。1.調溫型除濕機具有多種功能,能適應變化較大的高溫高濕的環境。調溫型除濕機能自動調溫、降溫除濕功能,
了解詳情